成都市第五人民医院
2021-11-04 来自: 成都言若建筑设计咨询有限公司 浏览次数:463
成都市第五人民医院医学研究与转化中心(以下简称“五院转化中心”)由成都市第五人民医院出资建设,建设选址地位于成都医学城三医创新中心(三期),建筑面积1775平方米,项目整体按照“一库三平台”进行规划布局,即建成标准化临床生物样本库、细胞生物学技术平台、分子生物学技术平台和组织病理与影像技术研究平台。

项目设计难点
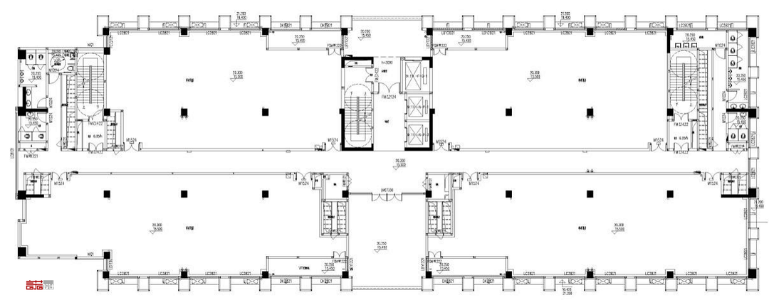
医院聚力打造的是“高峰”专科,而本项目设计难点在于建筑通道单一(附原始平面图),需要在此基础上既能实现实验室基本的三流分离,又能不影响消防的使用较为困难,好在本实验室并不考虑临床标本的采集与实验要求。言若设计与甲方经过五次会议商讨,了解其实际需求并结合相关规范要求,最终确立了平面方案。

附:原始平面图
言若设计在整体空间上以中间电梯为主要出入口,利用原排风百叶形成过道通往右上角清洁办公区,经更衣进入实验区,实验区内大致开设细胞工程研究室、分子生物学大平台、生物样本库、肿瘤疾病研究室、老年疾病研究室等五个板块;右侧实验区通过后方过道与左侧实验区连成整体。后方过道房间基本设置为机房、库房等辅助功能间,同时划分临近防火分区,以此来缓解紧急疏散的问题。
流线的布局
医务流线

医务人员需通过独立入口进入清洁办公区,言若设计在此设立了开放式茶歇区、独立办公室及开放式办公区、独立中型会议室、库房以及清洁卫生间等功能,满足工作人员日常使用需求,在清洁过道进入更衣缓冲区进入实验区内;实验区内设置内部通道前往不同实验室区域,也使医务人员更加便捷。
标本流线

而我们在外部设计上,将已采集好的标本通过专 业运输进入本实验室,经由标本接收室的传递窗进入实验区,登记以后通过实验区内部过道送往不同实验区域。
污物流线

实验区域内所产生的污物均需使用专用医疗垃圾袋密封打包带出各实验室单元,收集后送往污洗灭菌区进行集中处理,经由洗涤、高压灭菌、打包暂存等规范流程后通过专用通道再运出实验室。
设计目的
五院转化中心的建设是成都市第五人民医院为打造设备先 进、功能齐全、人才高 端、技术前沿的科研平台;主要为医院提升科技创新能力,推动“医教研”三位一体协同发展,为医院引育优 秀医学科技人才,产出重大原创成果;五院转化中心的建设是为带动前沿高 端医疗技术研发,建设研究型医院的发展提供了新动能、新支撑!
本项目于2020年2月下旬开始施工,预计7月上旬投入使用。言若设计在施工期间会持续跟进,积极参与甲方组织召开的施工例会,认真配合施工方,进行工艺技术交底、现场问题答疑、结合现场进行图纸优化、材料选样等;做到一个项目从设计到实景呈现的一 条龙服务。

